北京市
[切换]
咨询热线:
400-011-2014
账号登录
免费入驻
首页
找施工队
找设计师
免费图纸
免费设计
购宅基地
建房百科
资料下载
建房攻略
施工技术
同城建材
工地招工
微信公众号
下载APP
直接跟施工队谈报价
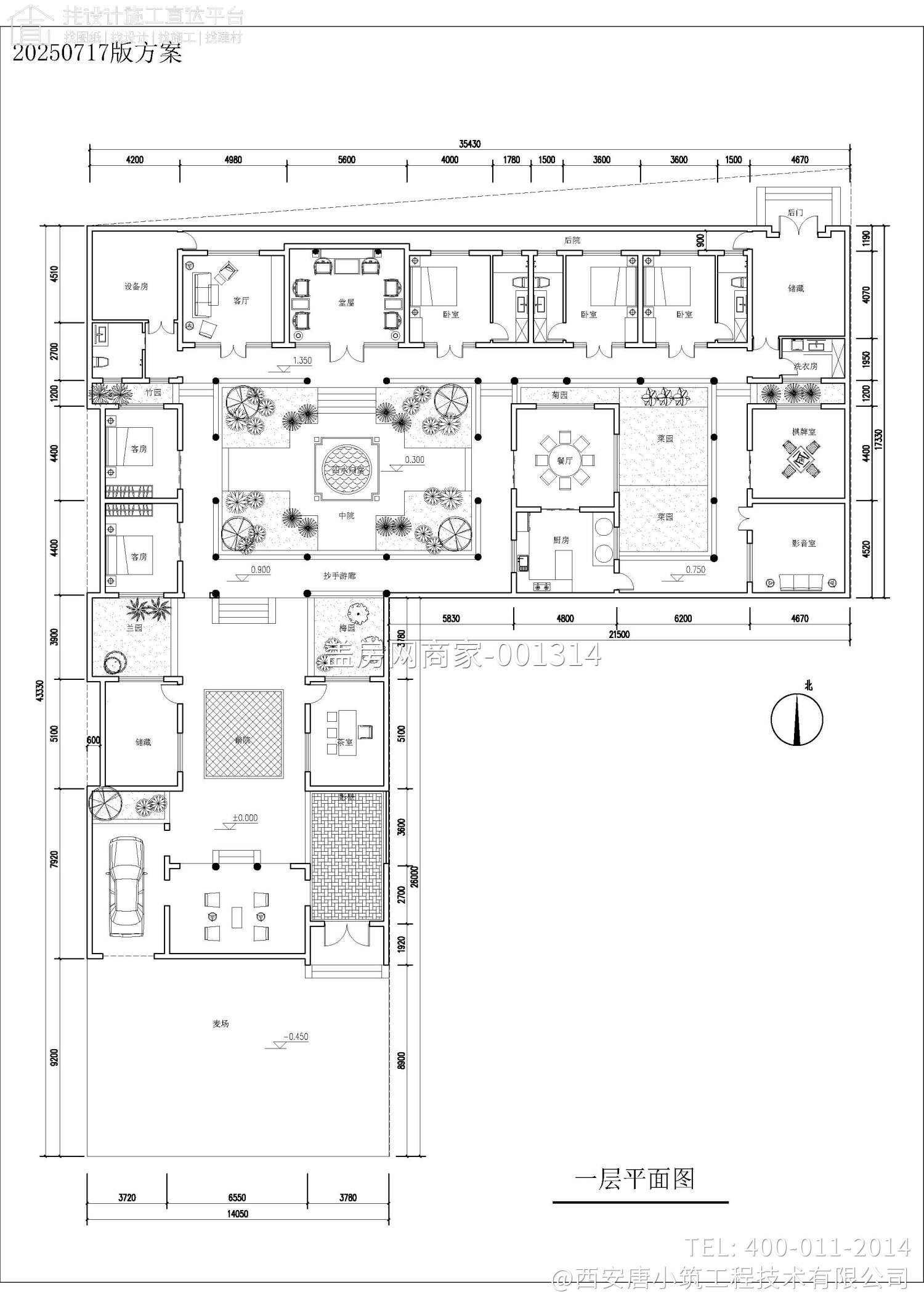
西安彬县别墅设计
案例名称
西安彬县别墅设计
案例类型
建筑设计
设计公司
西安唐***程技术有限公司
项目地址
陕西省咸阳市彬县
项目状态
设计中
设计面积
682 ㎡
设计费
0.00 万元
案例介绍
-
案例展示
造价
测算
AI
免费
设计
设计师
施工队
建材商
工人
公司/施工队名:
联系人姓名:
性别:
男
女
年龄:
岁
是否有人推荐:
自己申请
工友推荐
设计师
施工队
建材商
推荐人手机号:
您的手机号码:
请输入验证码:
施工队介绍:
提交入驻申请