北京市
[切换]
咨询热线:
400-011-2014
账号登录
免费入驻
首页
找施工队
找设计师
免费图纸
免费设计
购宅基地
建房百科
资料下载
建房攻略
施工技术
同城建材
工地招工
微信公众号
下载APP
直接跟设计师沟通
雷州市调风村别墅
案例名称
雷州市调风村别墅
案例类型
建筑设计
设计公司
广东吉***设计有限公司
项目地址
广东省湛江市雷州市
项目状态
设计中
设计面积
480 ㎡
设计费
72.00 万元
案例介绍
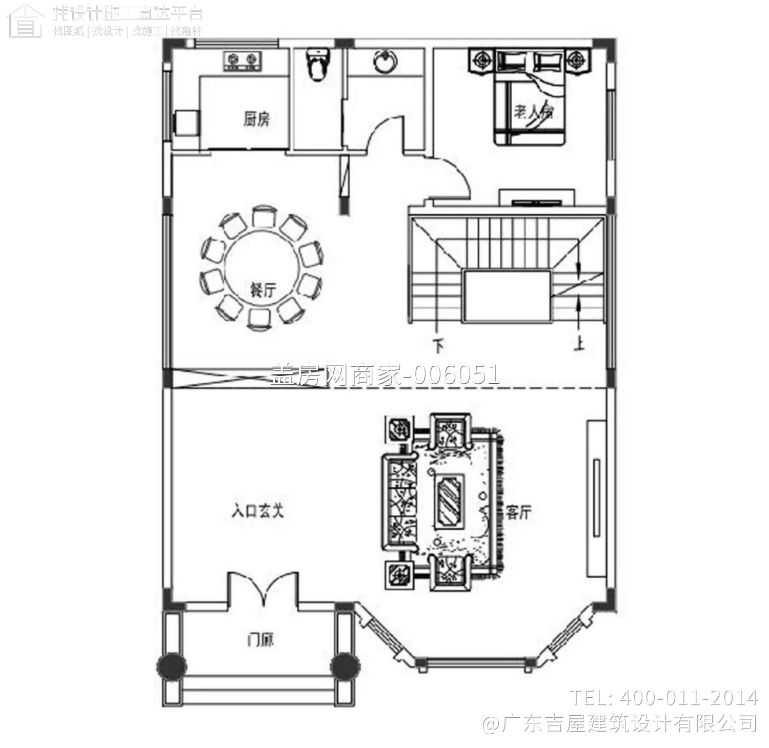
项目位于:雷州市调风村 宽深尺寸:9.7M*12.3M 使用面积:480平方 建筑层高:3.6M+3.3M+3.3M+3.3M+2M 建筑层数:四层+隔热坡屋顶 建筑风格:简欧风格
案例展示
造价
测算
AI
免费
设计
设计师
施工队
建材商
工人
公司/施工队名:
联系人姓名:
性别:
男
女
年龄:
岁
是否有人推荐:
自己申请
工友推荐
设计师
施工队
建材商
推荐人手机号:
您的手机号码:
请输入验证码:
施工队介绍:
提交入驻申请