河南驻马店龙家欧式别墅
- 001169
- 106.80 万元
- 477.00 ㎡
- 295.00 ㎡
- 18.00 米
- 21.00 米
- 4 开间
- 5 间
- 2 层
- 欧式,完工实景
- 框架结构
- 河南省/驻马店市
- 有露台,坡屋顶,贴邻居,有庭院,东楼梯,北楼梯,3开间,4开间,5卧室
项目简介
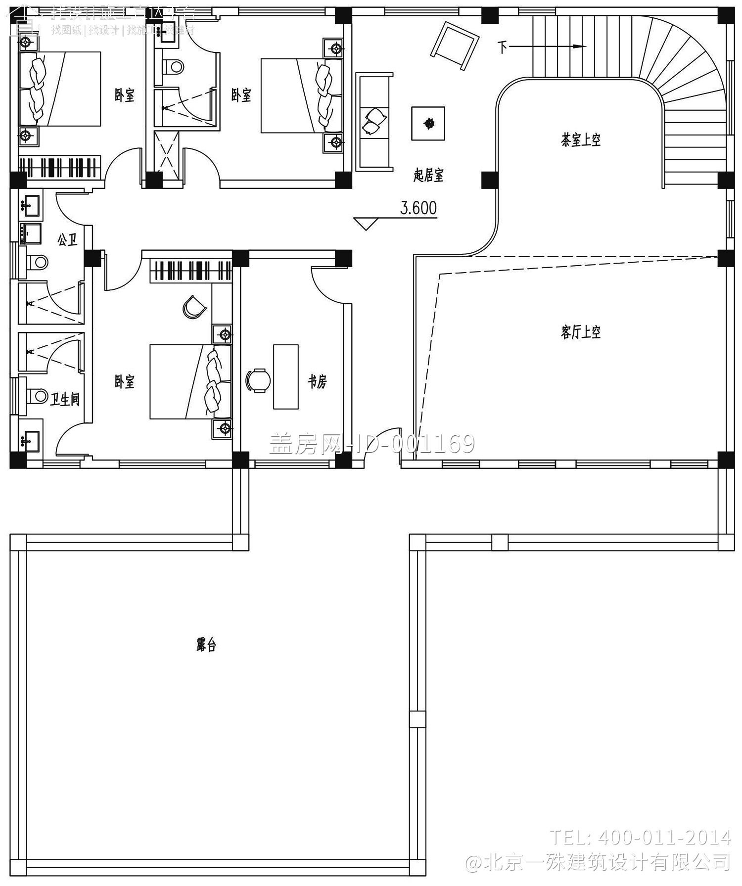
平面图
效果图
立面图
施工照片
