陕西汉中新家现代别墅
- 001485
- 140.00 万元
- 842.00 ㎡
- 132.00 ㎡
- 11.00 米
- 12.00 米
- 2 开间
- 6 间
- 6 层
- 现代,实用
- 框架结构
- 陕西省/汉中市
- 有车库,有露台,坡屋顶,贴邻居,有庭院,东楼梯,西楼梯,2开间,6-7卧室
项目简介
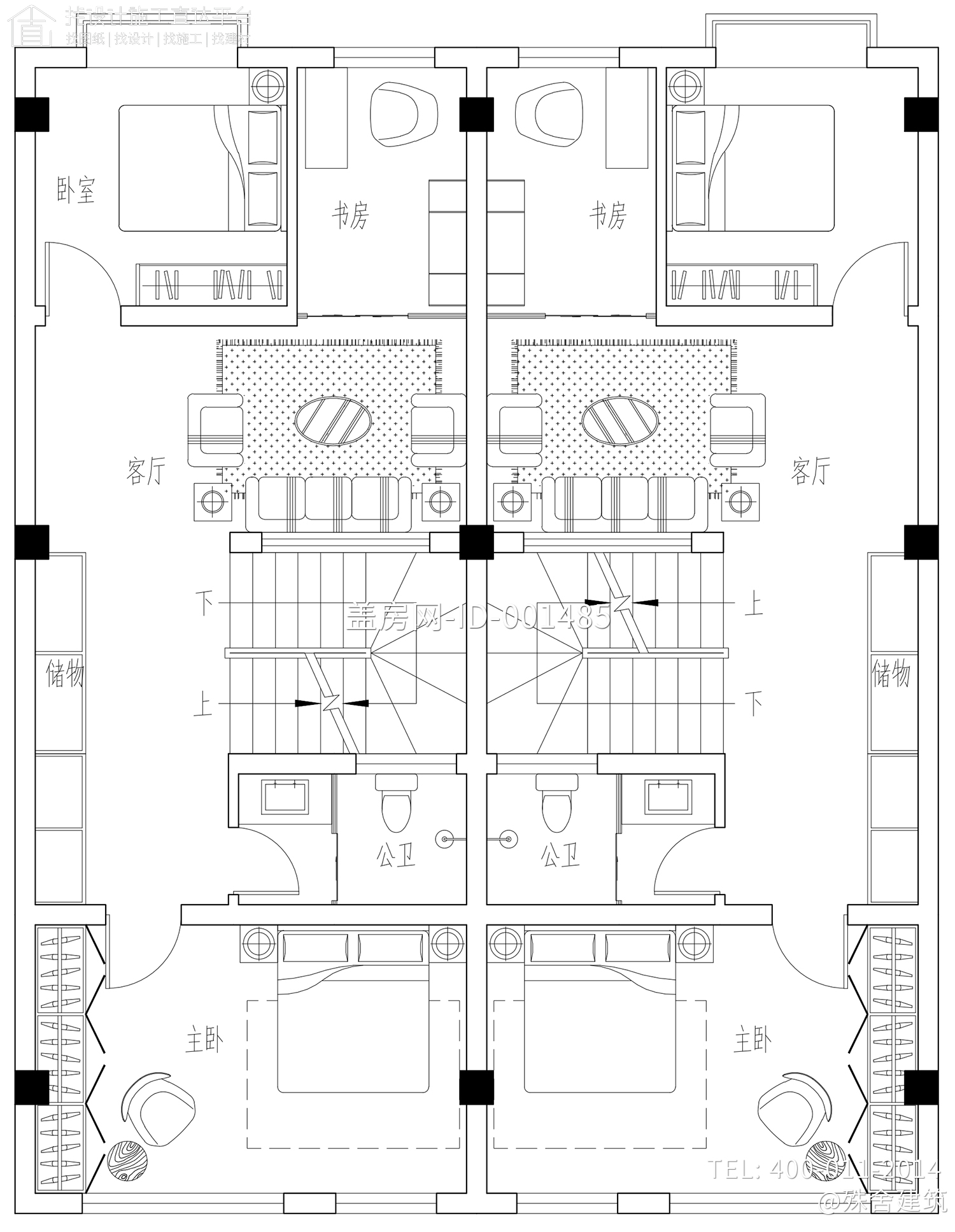
平面图
效果图
立面图
