广东湛江文家欧式简洁别墅图纸
- 001529
- 47.00 万元
- 263.00 ㎡
- 103.00 ㎡
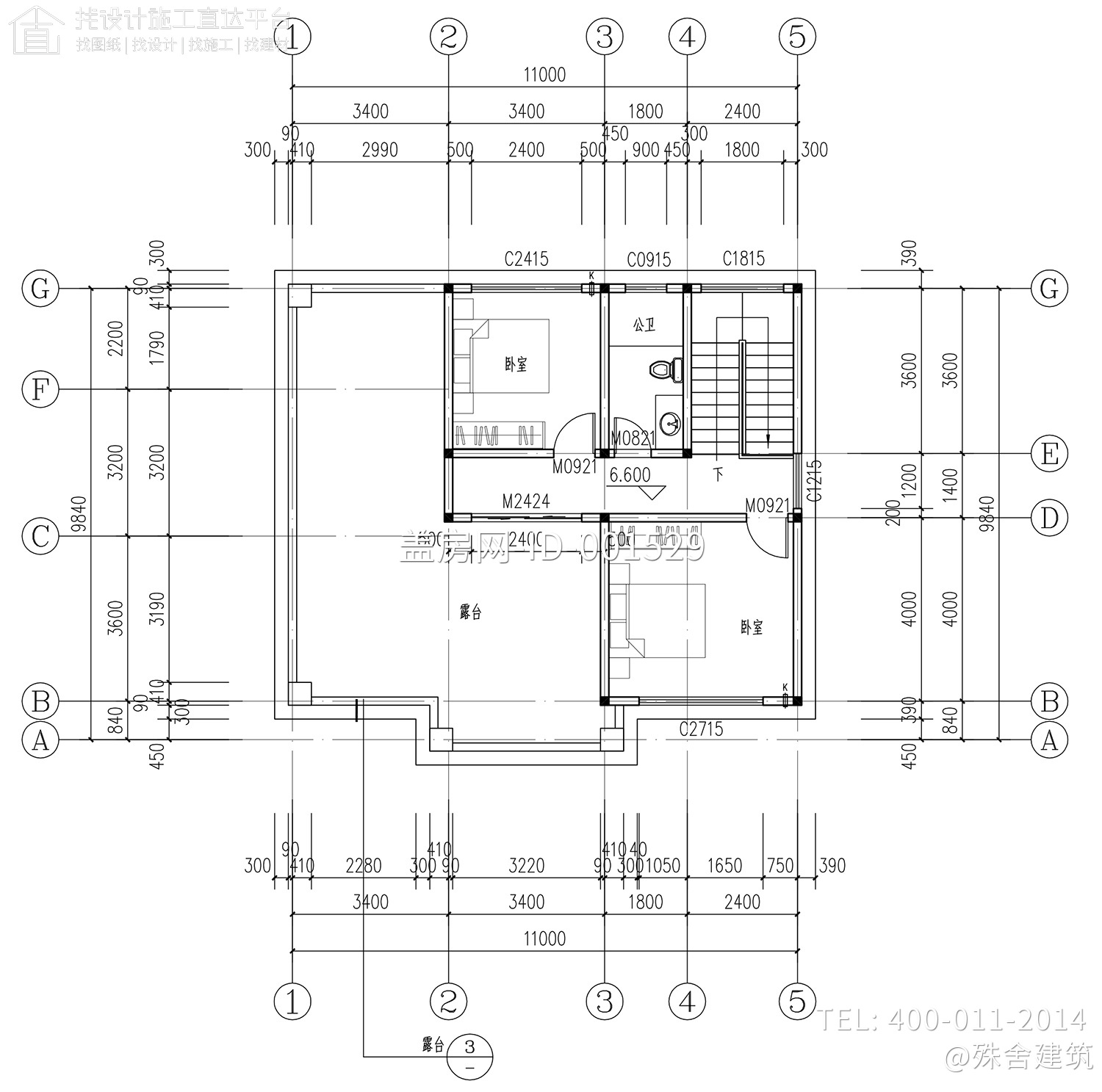
- 11.00 米
- 9.80 米
- 4 开间
- 7 间
- 3 层
- 欧式,实用
- 砖混结构
- 广东省/湛江市
- 有露台,平屋顶,北楼梯,4开间,6-7卧室
项目简介
平面图
效果图
