北京平谷孙家二层欧式自建别墅
- 002030
- 64.00 万元
- 455.00 ㎡
- 231.00 ㎡
- 14.50 米
- 22.30 米
- 3 开间
- 4 间
- 2 层
- 热门精品,欧式,实用,左右对称
- 砖混结构
- 北京/北京市/平谷区
- 坡屋顶,贴邻居,有庭院,三合院,有闷顶,西楼梯,3开间,4卧室
项目简介
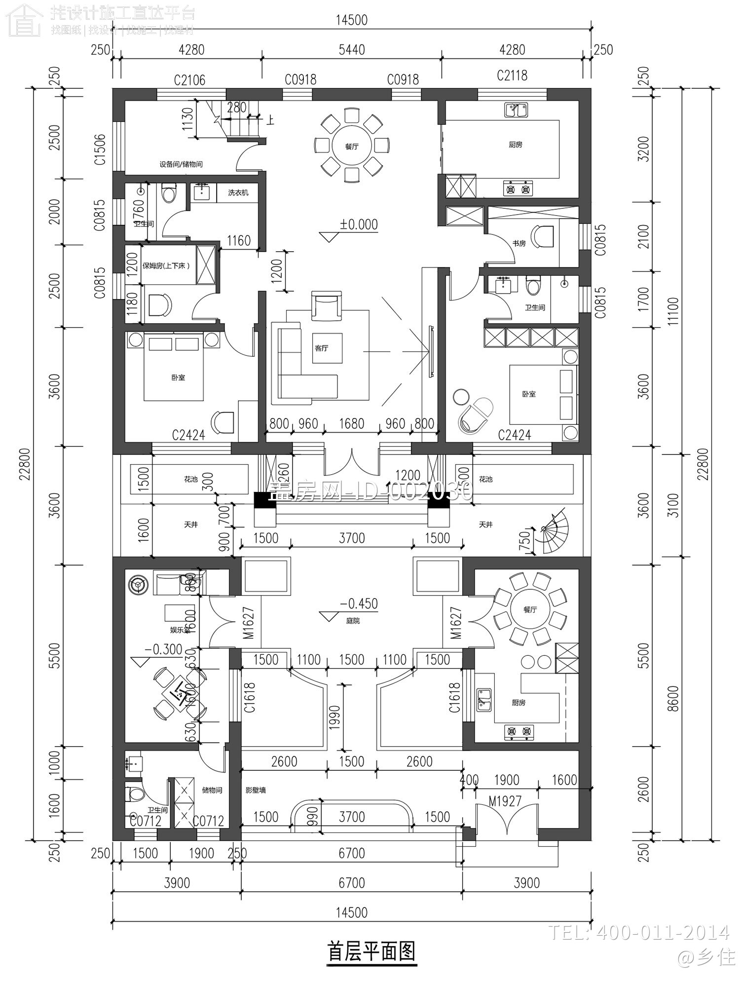
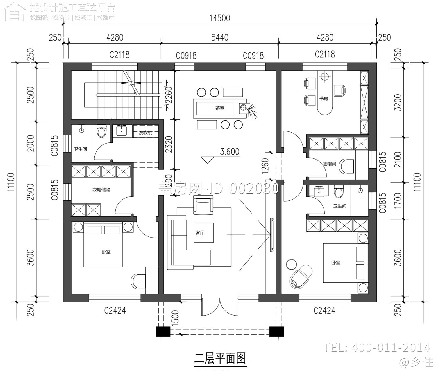
平面图
效果图
立面图
