北京市
[切换]
咨询热线:
400-011-2014
账号登录
免费入驻
首页
找施工队
找设计师
免费图纸
免费设计
购宅基地
建房百科
资料下载
建房攻略
施工技术
同城建材
工地招工
微信公众号
下载APP
直接拨打此设计师电话
免费下载施工图
下载预算表
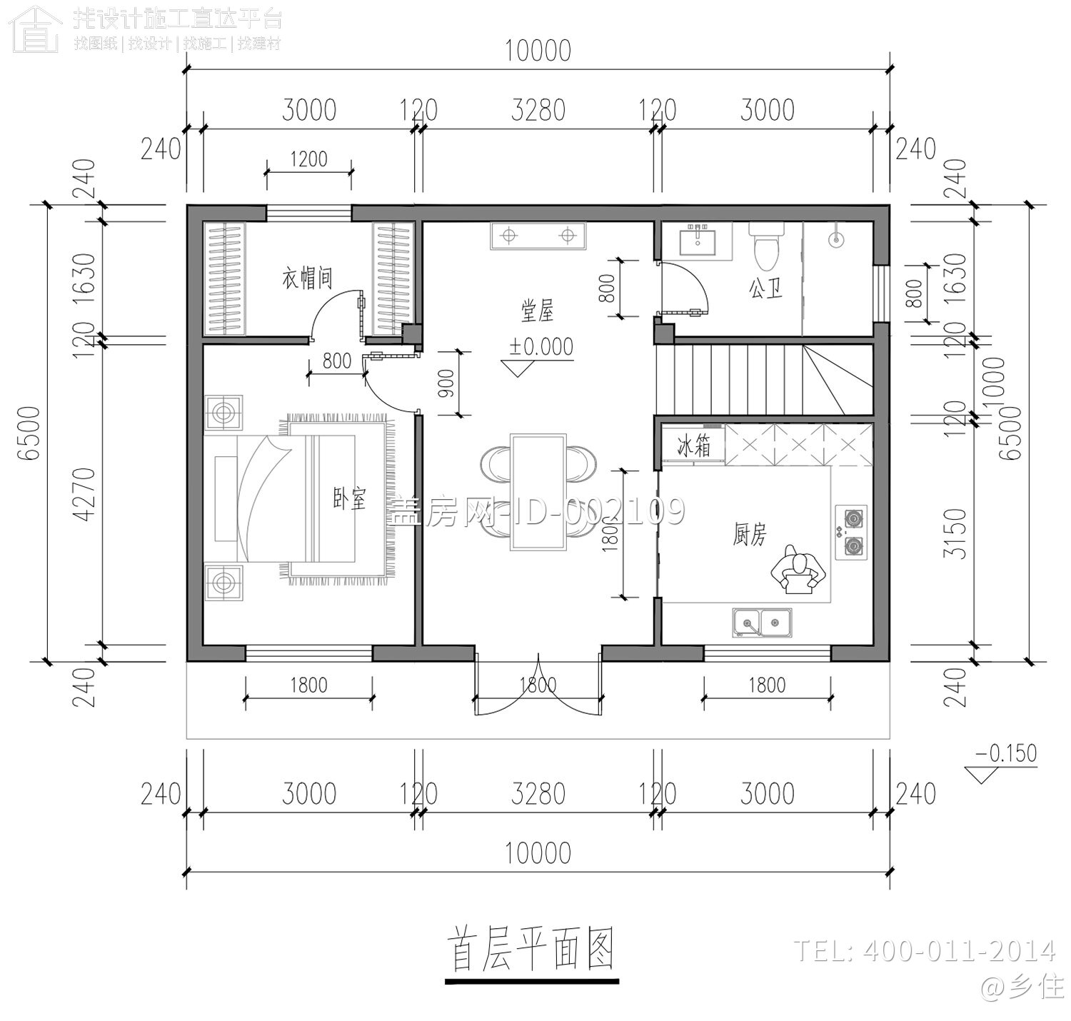
安徽合肥张家二层新中式别墅
设计机构:
乡住
图纸编号
002109
建筑造价
15.00 万元
建筑面积
95.00 ㎡
占地面积
65.00 ㎡
面 宽
10.00 米
进 深
6.50 米
开间数量
3 开间
卧室数量
2 间
建筑层数
2 层
建筑风格
热门精品,实用,新中式
结构形式
砖混结构
所在城市
安徽省/合肥市/肥东县
建筑特征
有露台,坡屋顶,有庭院,西楼梯,3开间,2卧室
项目简介
平面图
效果图
尺寸不符-AI免费设计一下
省份
城市
生成预算表
每人最多可免费下载1套
请输入手机号码进行验证
您的手机号码:
请输入验证码:
是否需要设计师 和施工队跟您联系:
需要
不需要
免费下载全套施工图
付费下载全套图纸源文件压缩包
添加客服微信获取多套图纸(免费)
如果下载图纸不合适
需要多套图纸
请添加客服微信获取
造价
测算
AI
免费
设计
搜索
图纸
设计师
施工队
建材商
工人
公司/施工队名:
联系人姓名:
性别:
男
女
年龄:
岁
是否有人推荐:
自己申请
工友推荐
设计师
施工队
建材商
推荐人手机号:
您的手机号码:
请输入验证码:
施工队介绍:
提交入驻申请