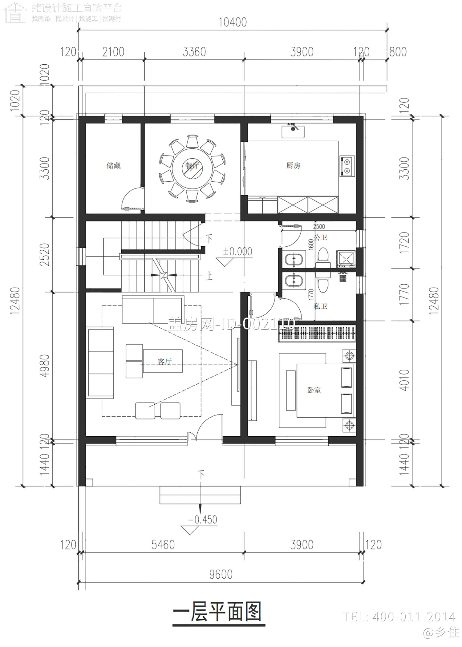
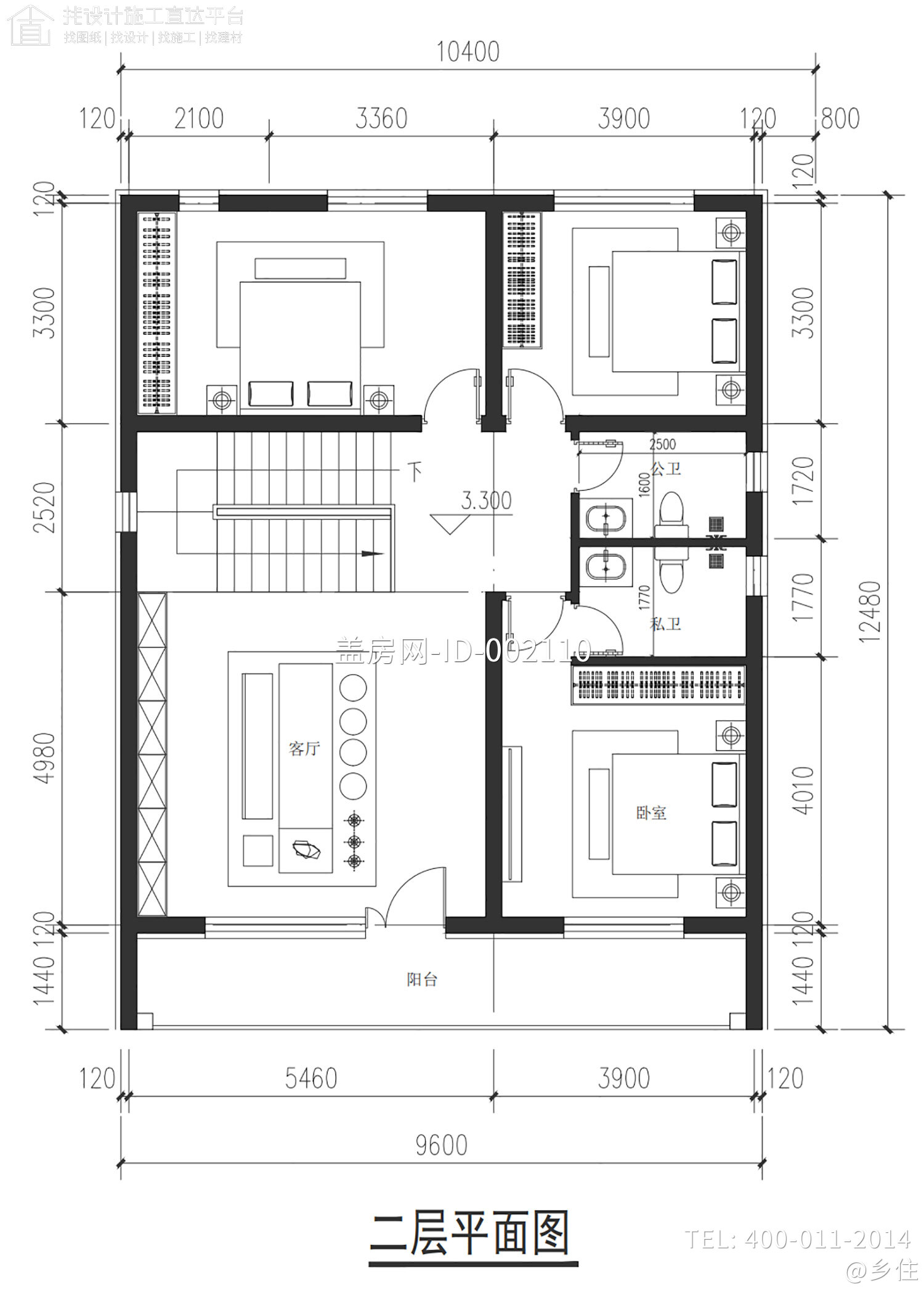
北京延庆张家二层现代别墅
- 002110
- 33.00 万元
- 232.00 ㎡
- 116.00 ㎡
- 9.60 米
- 12.40 米
- 2 开间
- 4 间
- 2 层
- 热门精品,现代,欧式,实用
- 砖混结构
- 北京/北京市/延庆县
- 坡屋顶,贴邻居,有庭院,西楼梯,2开间,4卧室
动态视频
项目简介
平面图
效果图
