云南昆明谢家二层新中式别墅
- 002111
- 30.00 万元
- 216.00 ㎡
- 105.00 ㎡
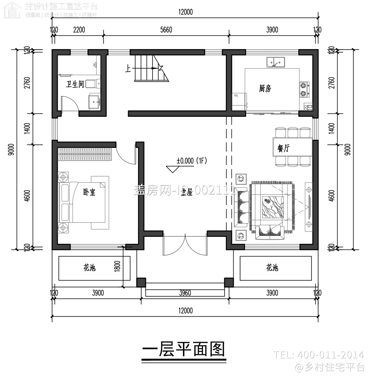
- 12.00 米
- 9.00 米
- 3 开间
- 4 间
- 2 层
- 热门精品,实用,左右对称
- 砖混结构
- 云南省/昆明市
- 有露台,坡屋顶,有堂屋,有庭院,有闷顶,北楼梯,3开间,4卧室
动态视频
项目简介
平面图
效果图
