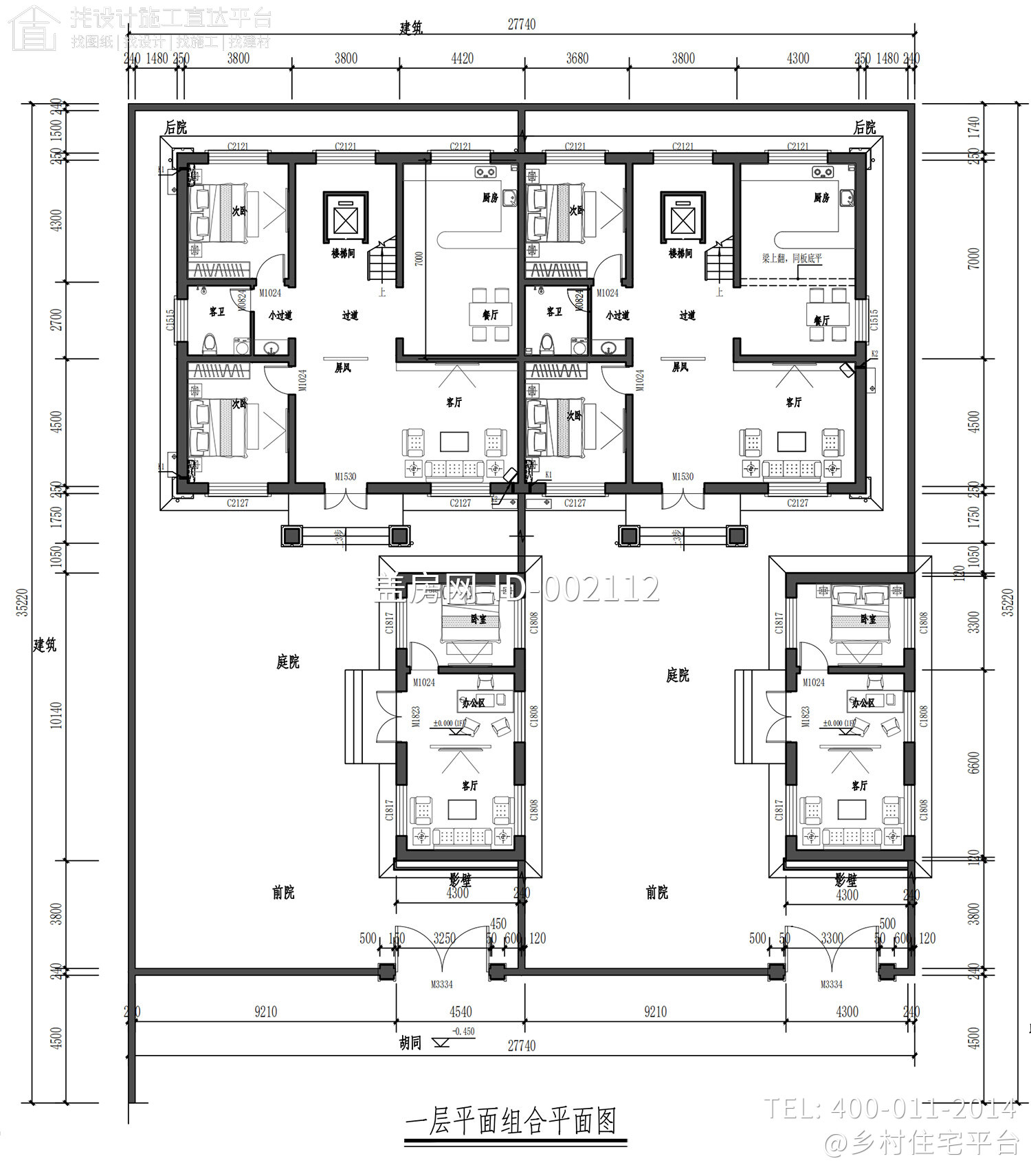
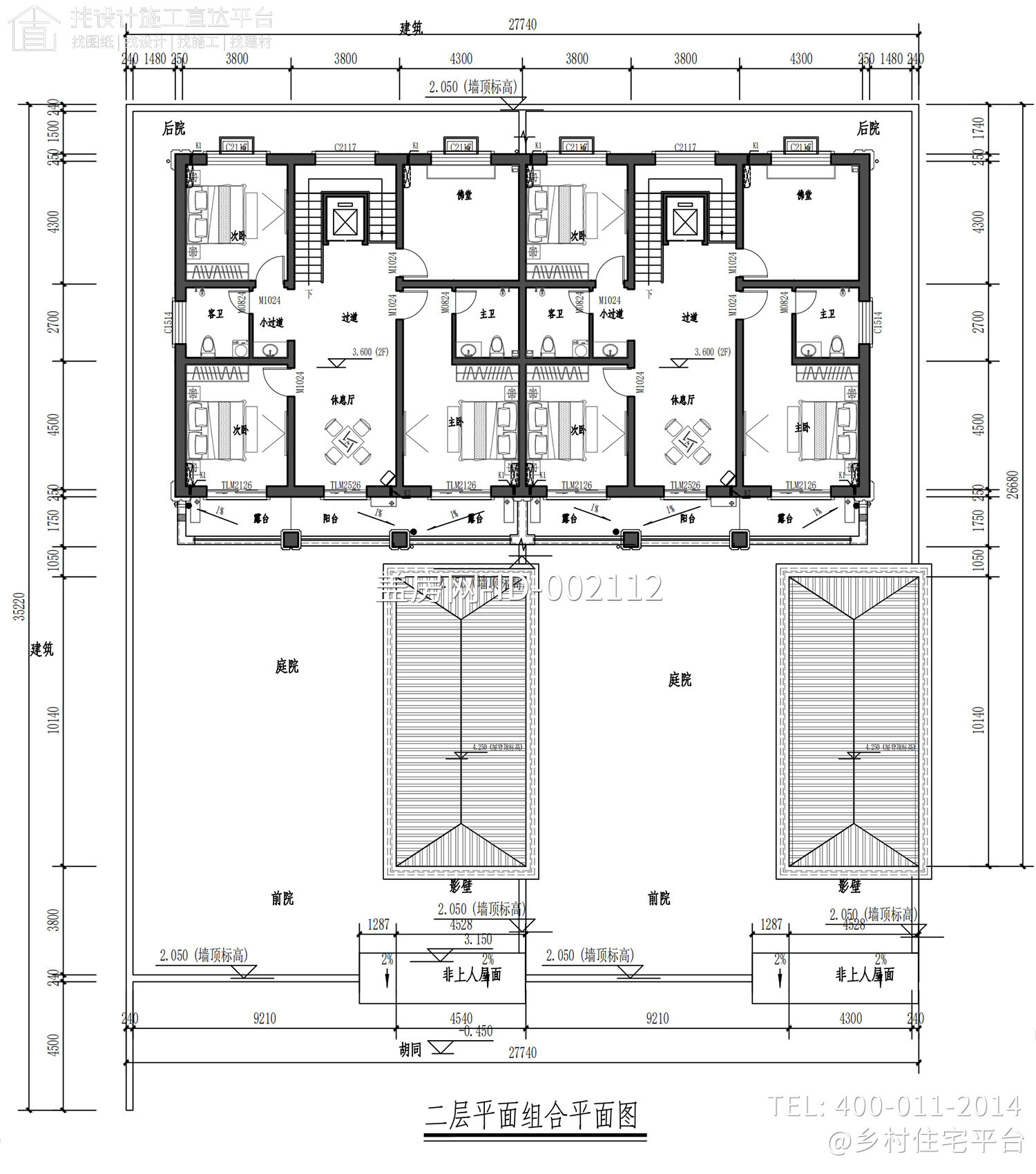
山西临汾高家二层新中式双拼别墅
- 002112
- 97.00 万元
- 690.00 ㎡
- 320.00 ㎡
- 24.30 米
- 13.70 米
- 6 开间
- 12 间
- 2 层
- 热门精品,新中式,双拼
- 砖混结构
- 山西省/临汾市
- 有露台,坡屋顶,有挑空,有庭院,有闷顶,北楼梯,3开间,6开间,10卧室以上,带电梯
项目简介
平面图
效果图
