河南南阳罗家二层现代别墅
- 002114
- 47.00 万元
- 336.00 ㎡
- 150.00 ㎡
- 12.20 米
- 12.20 米
- 3 开间
- 6 间
- 2 层
- 热门精品,现代,实用
- 框架结构
- 河南省/南阳市
- 有露台,平屋顶,有庭院,东楼梯,3开间,6-7卧室
动态视频
项目简介
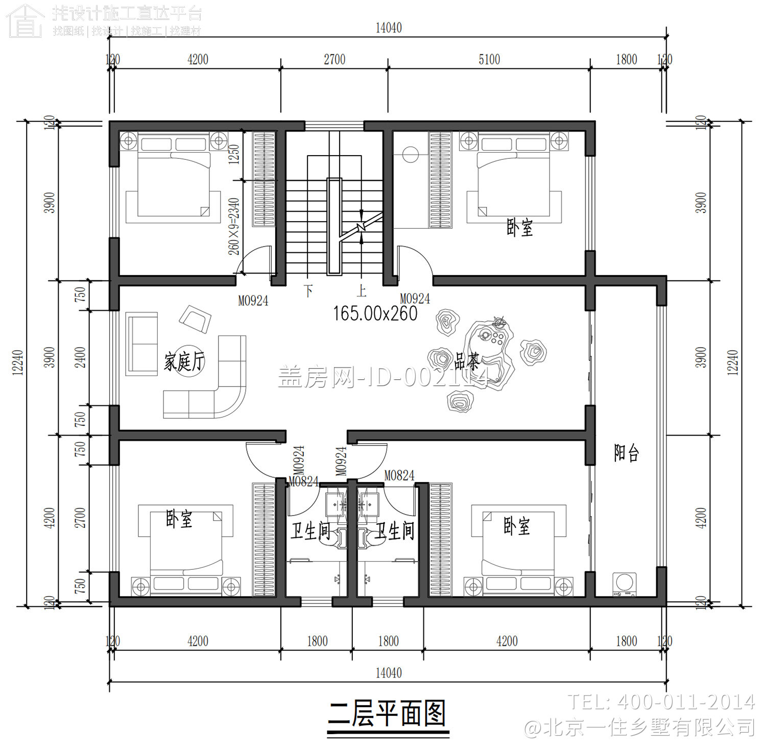
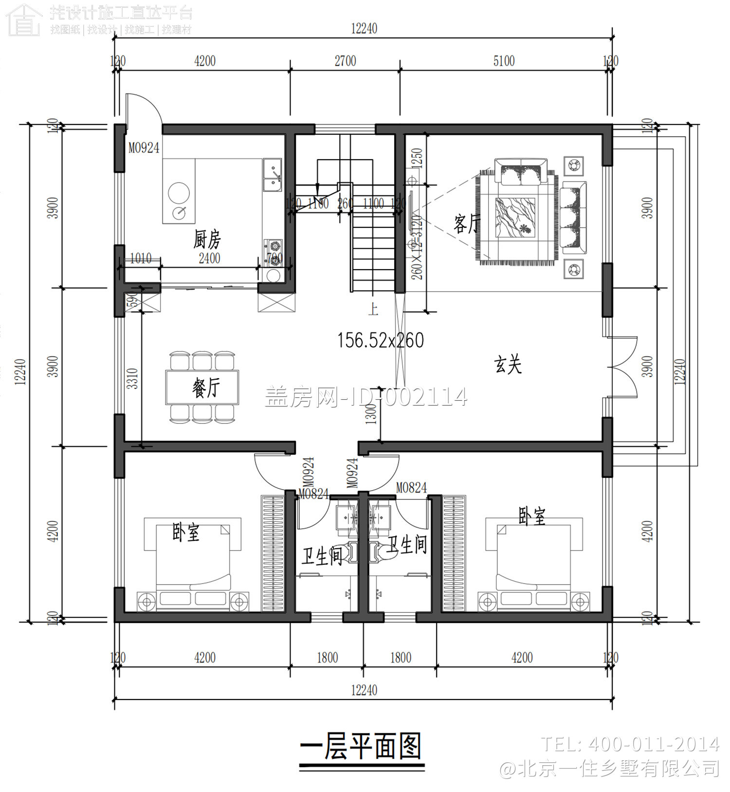
平面图
效果图
