北京密云金家二层现代别墅
- 002115
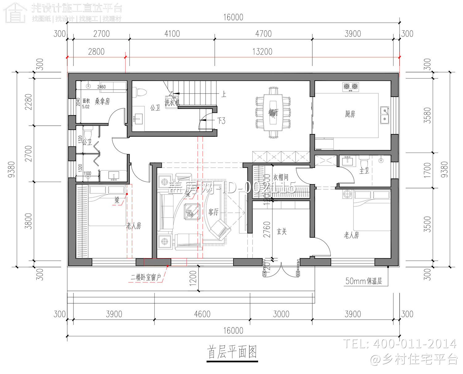
- 41.00 万元
- 296.00 ㎡
- 150.00 ㎡
- 16.00 米
- 9.30 米
- 4 开间
- 5 间
- 2 层
- 热门精品,现代,实用
- 砖混结构
- 北京/北京市/密云县
- 有露台,平屋顶,有庭院,北楼梯,4开间,5卧室
动态视频
项目简介
平面图
效果图
