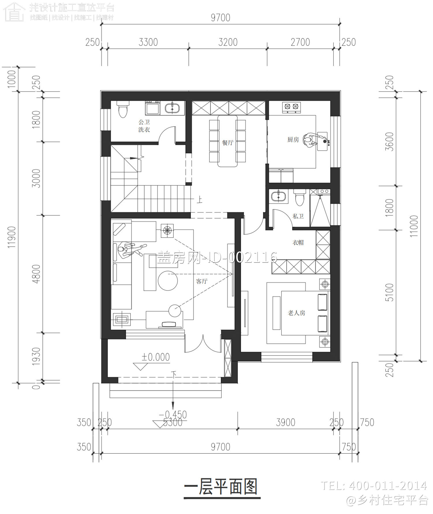
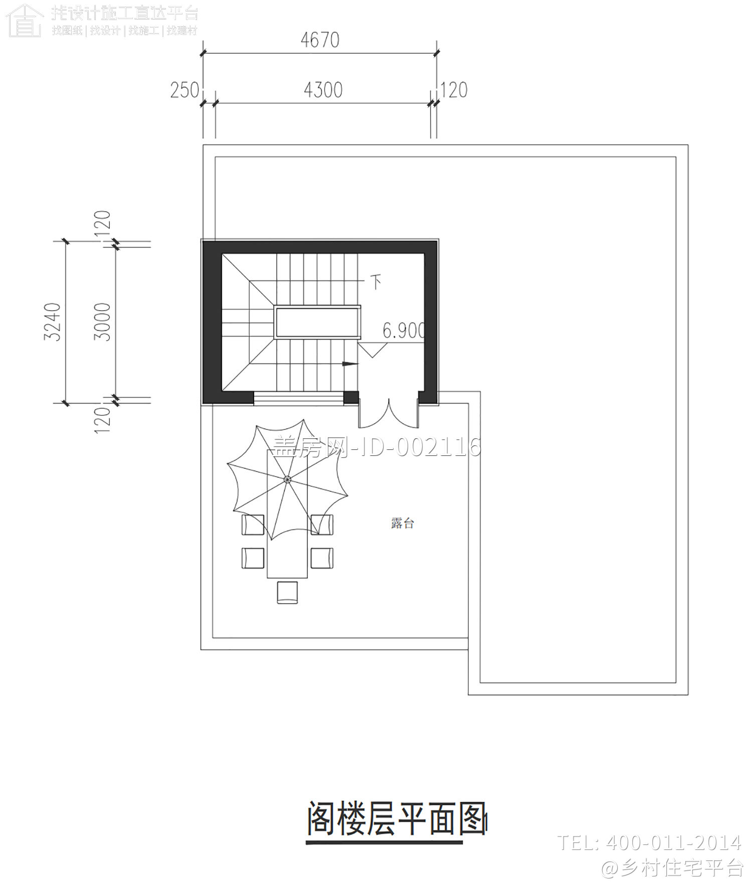
北京怀柔白家二层欧式自建别墅
- 002116
- 37.00 万元
- 241.00 ㎡
- 113.00 ㎡
- 9.70 米
- 11.00 米
- 2 开间
- 4 间
- 2 层
- 热门精品,欧式,实用
- 砖混结构
- 北京/北京市/怀柔区
- 有露台,坡屋顶,有庭院,有闷顶,西楼梯,2开间,4卧室
动态视频
项目简介
平面图
效果图
