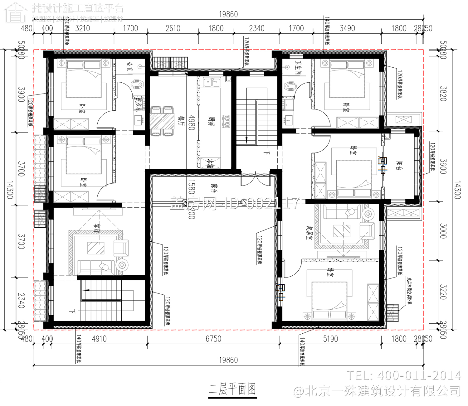
北京密云张家二层中式三合院
- 002117
- 76.00 万元
- 425.00 ㎡
- 212.00 ㎡
- 19.80 米
- 14.30 米
- 4 开间
- 8 间
- 2 层
- 热门精品,中式
- 砖混结构
- 北京/北京市/密云县
- 有露台,坡屋顶,有庭院,三合院,北楼梯,4开间,8-9卧室
项目简介
平面图
效果图
