广东广州李家四层欧式别墅
- 002121
- 81.00 万元
- 577.00 ㎡
- 160.00 ㎡
- 9.00 米
- 17.00 米
- 2 开间
- 11 间
- 4 层
- 热门精品,欧式
- 框架结构
- 广东省/广州市
- 有露台,坡屋顶,有挑空,有庭院,有闷顶,西楼梯,2开间,10卧室以上,三跑楼梯,带电梯
项目简介
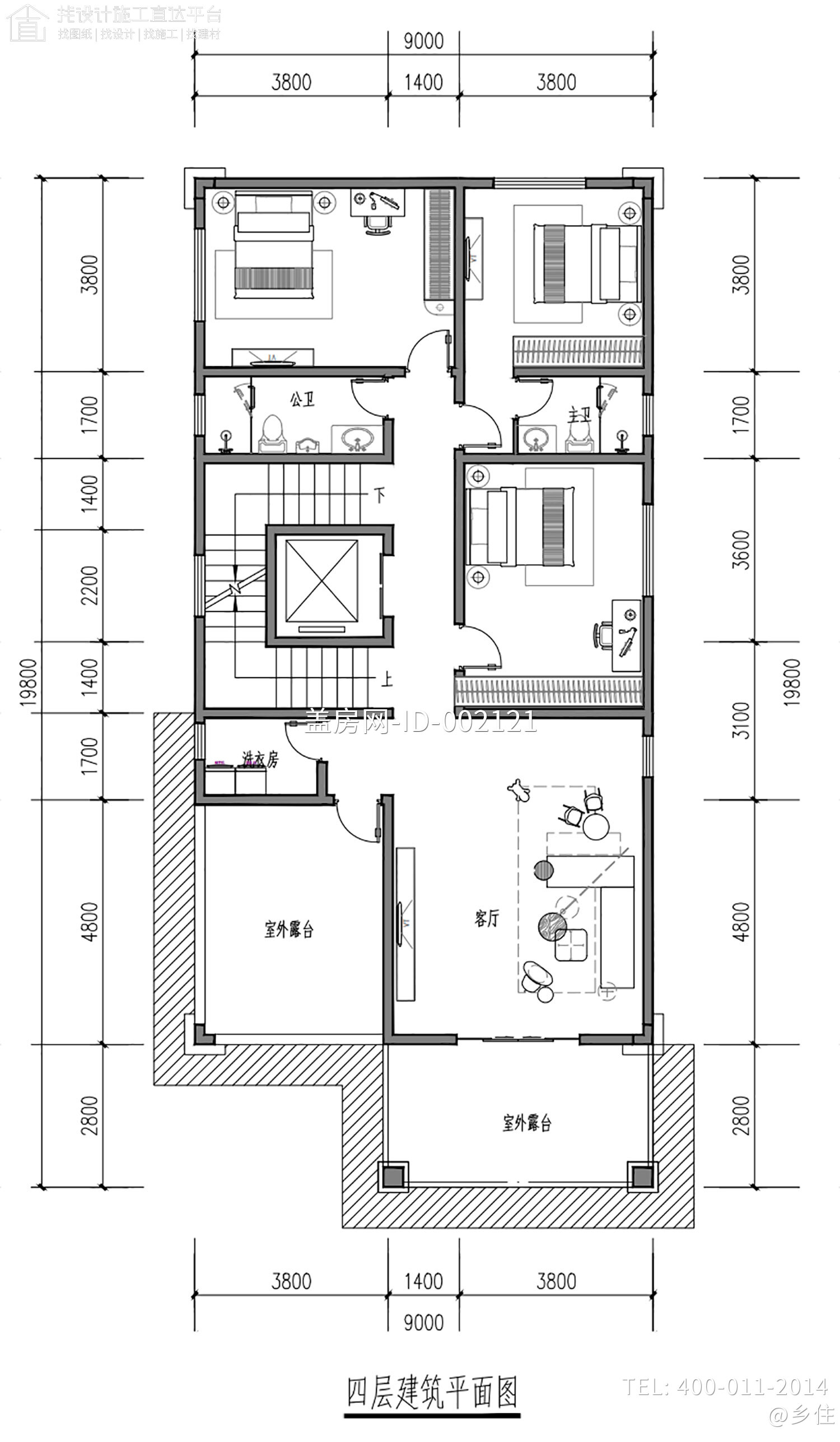
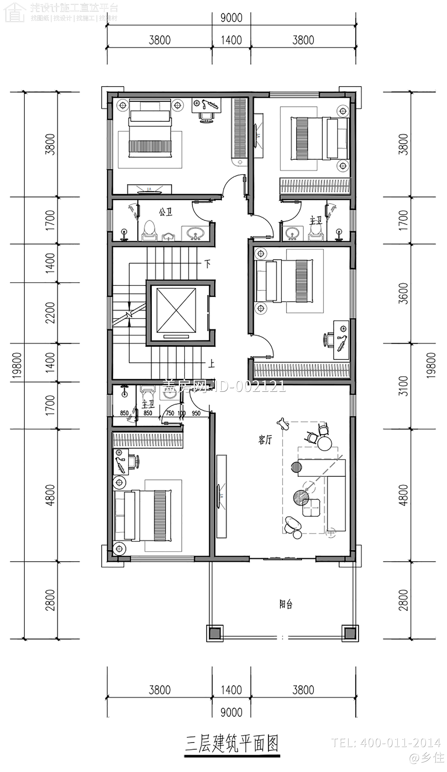
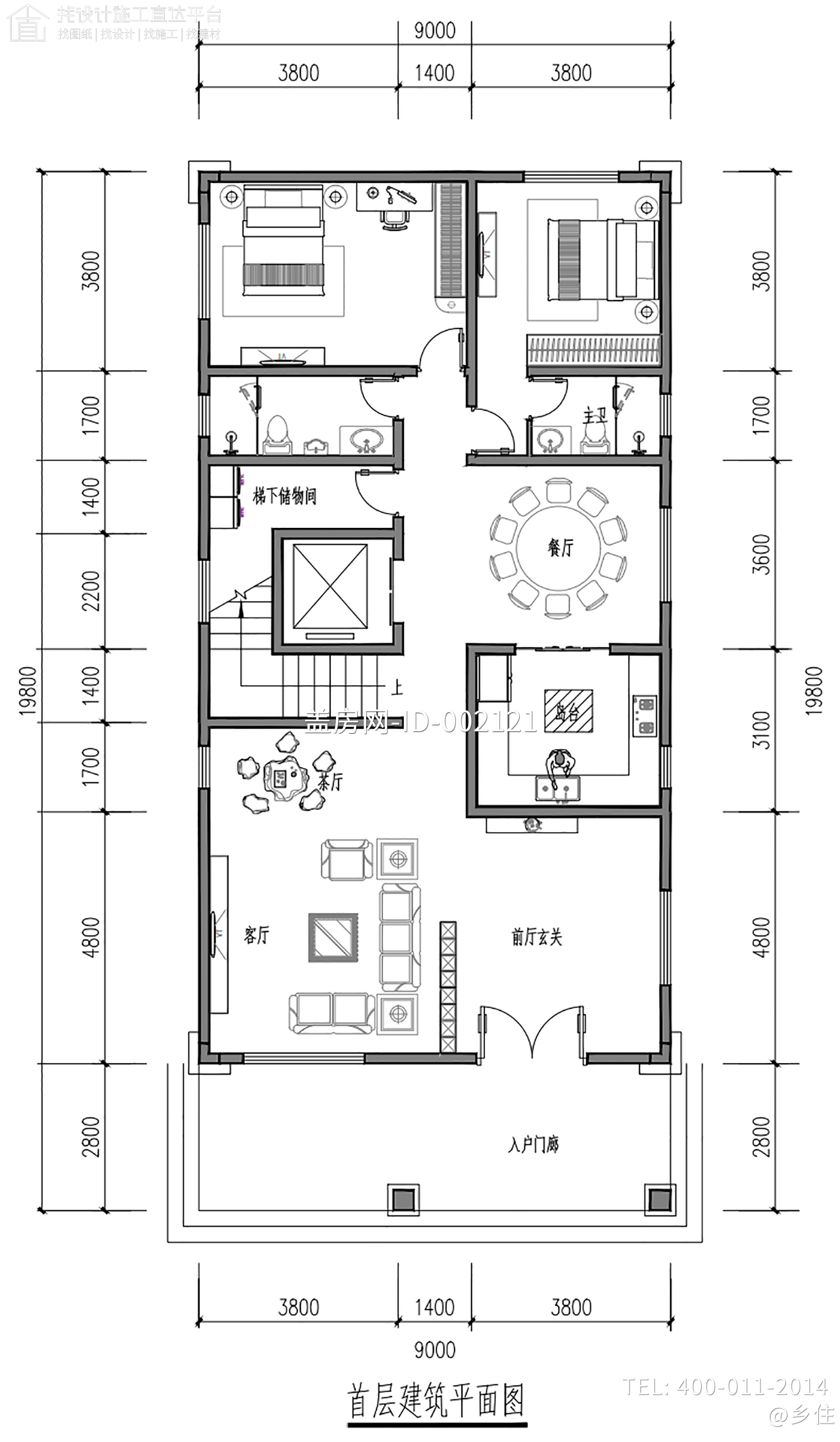
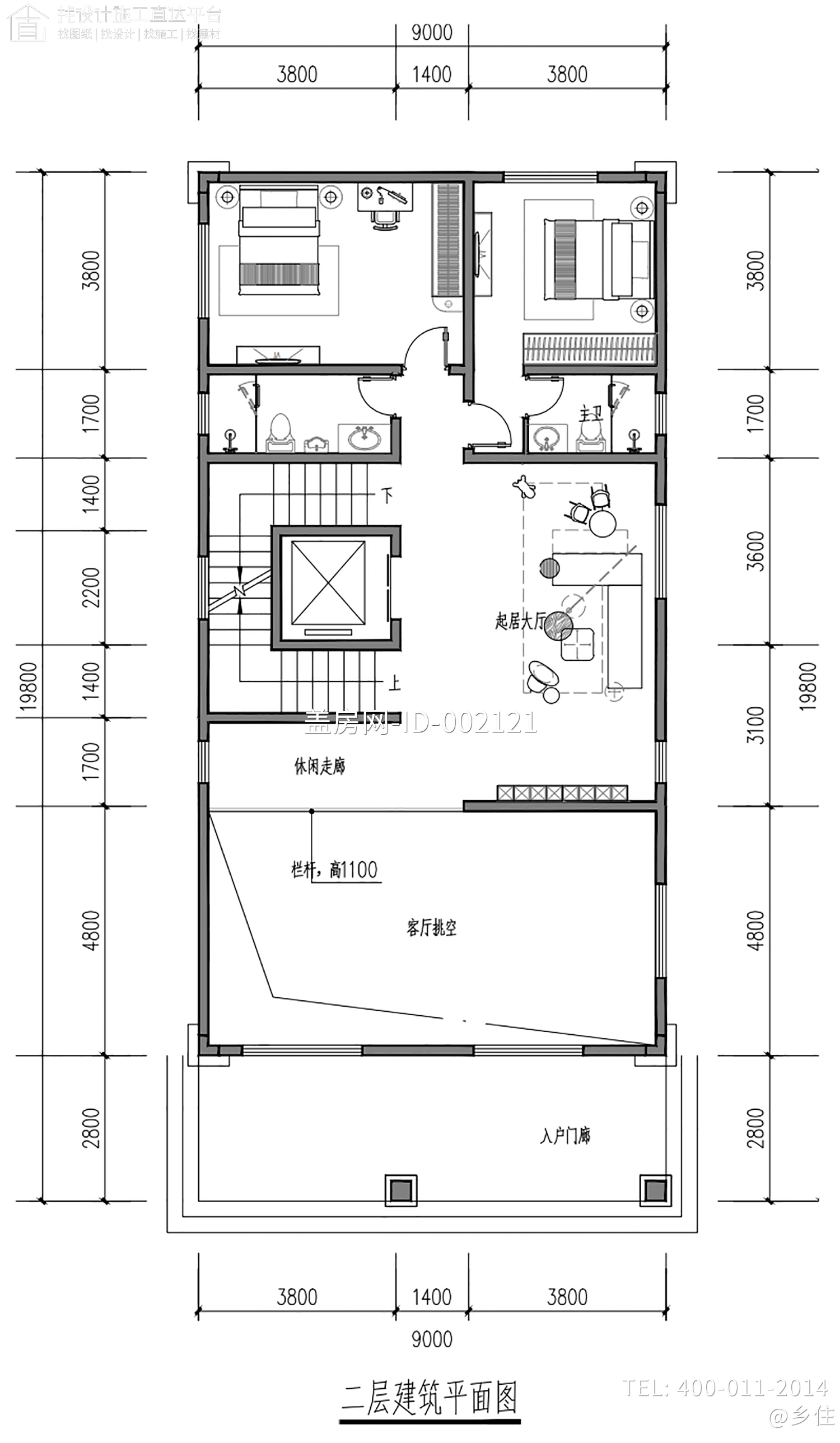
平面图
效果图
