陕西商洛杨家二层中式别墅
- 002122
- 85.00 万元
- 600.00 ㎡
- 326.00 ㎡
- 37.00 米
- 18.20 米
- 5 开间
- 5 间
- 2 层
- 热门精品,中式
- 砖混结构
- 陕西省/商洛市
- 有露台,坡屋顶,有挑空,有庭院,北楼梯,5开间,5卧室,三跑楼梯
项目简介
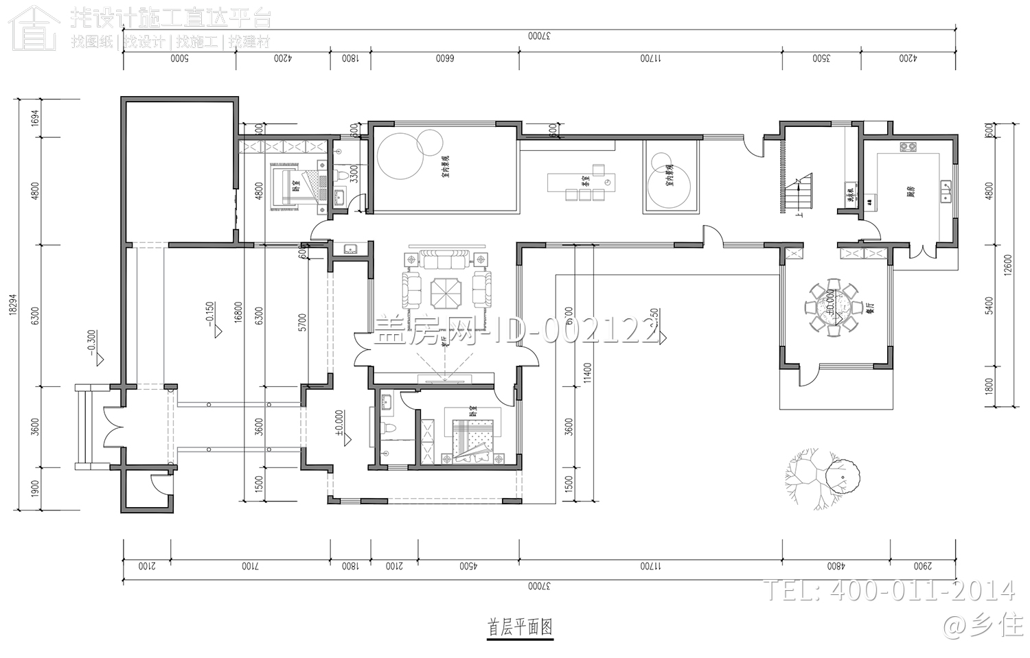
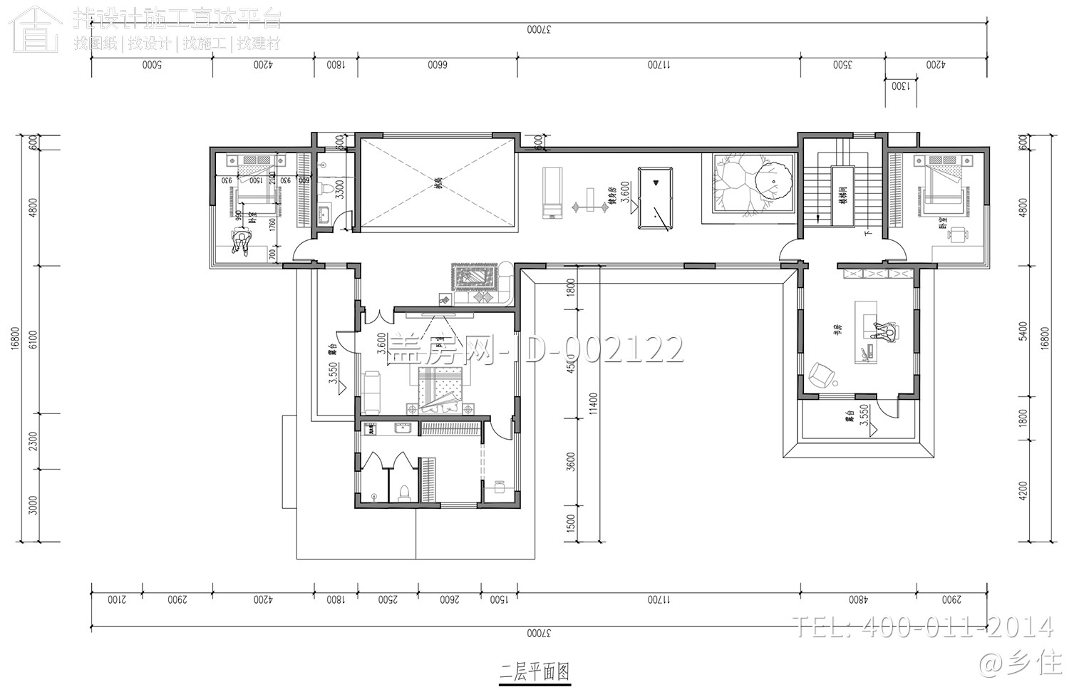
平面图
效果图
