贵州遵义杨家二层新中式自建别墅
- 002125
- 23.00 万元
- 159.00 ㎡
- 119.00 ㎡
- 11.50 米
- 11.50 米
- 3 开间
- 4 间
- 2 层
- 热门精品,实用,新中式
- 砖混结构
- 贵州省/遵义市
- 有露台,坡屋顶,有庭院,有闷顶,东楼梯,3开间,4卧室
动态视频
项目简介
这座建筑采用了典雅大气的新中式风格,整体造型方正端庄,外立面以浅暖色调的真石漆为主材,质感细腻温润。
平面图
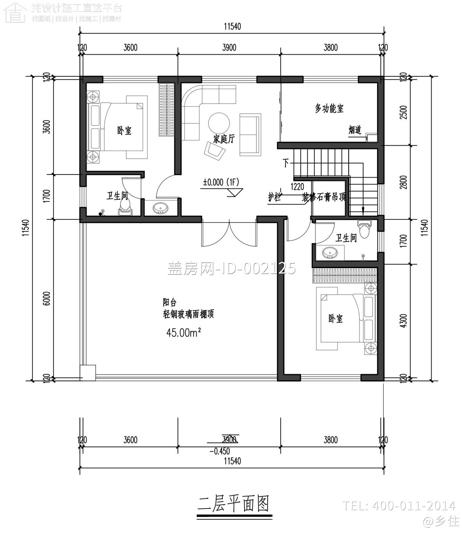
2层/4室3厅3卫 1厨房 1家庭厅 1多功能室 1露台 一层以休闲功能为主,共设有两间卧室,门厅与客厅巧妙结合,形成开阔大气的公共区域。二层同样设置两间卧室,并配有温馨的家庭厅和灵活多变的多功能室,充分满足了现代家庭的各种生活需求。
效果图
建筑立面设计采用了大面积的开窗布局,既保证了室内充足的自然采光,又营造出通透灵动的视觉效果。屋顶采用传统坡屋顶设计,线条优美流畅,与整体建筑风格相得益彰。南侧精心设计了宽敞的露台空间,配备了舒适的户外桌椅,为业主提供了绝佳的休闲观景场所。
