北京市 [切换]
咨询热线:400-011-2014
账号登录
免费入驻
直接拨打此设计师电话 免费下载施工图

贵州六盘水雷家二层新中式别墅

项目简介
贵州六盘水雷家二层新中式别墅
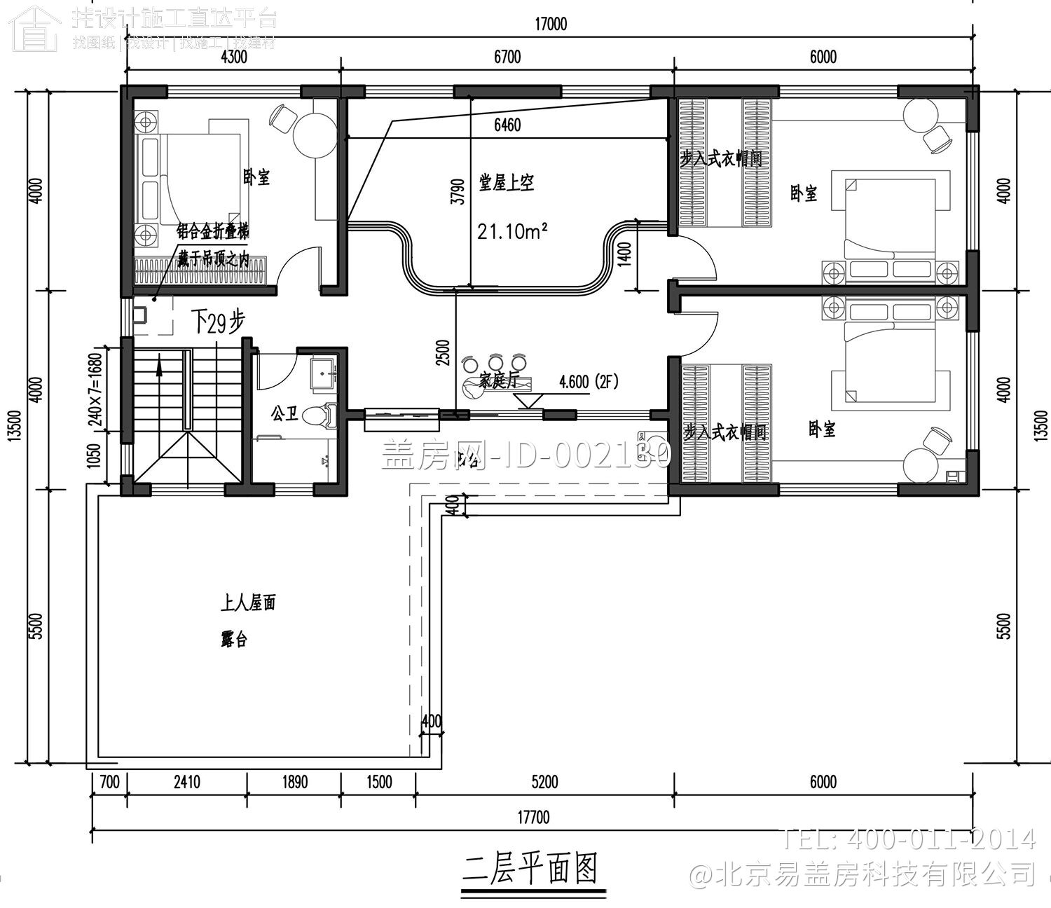
平面图
贵州六盘水雷家二层新中式别墅	贵州六盘水雷家二层新中式别墅
效果图
贵州六盘水雷家二层新中式别墅	贵州六盘水雷家二层新中式别墅	贵州六盘水雷家二层新中式别墅	贵州六盘水雷家二层新中式别墅