江苏苏州孟家三层现代自建别墅
- 002132
- 53.00 万元
- 379.00 ㎡
- 136.00 ㎡
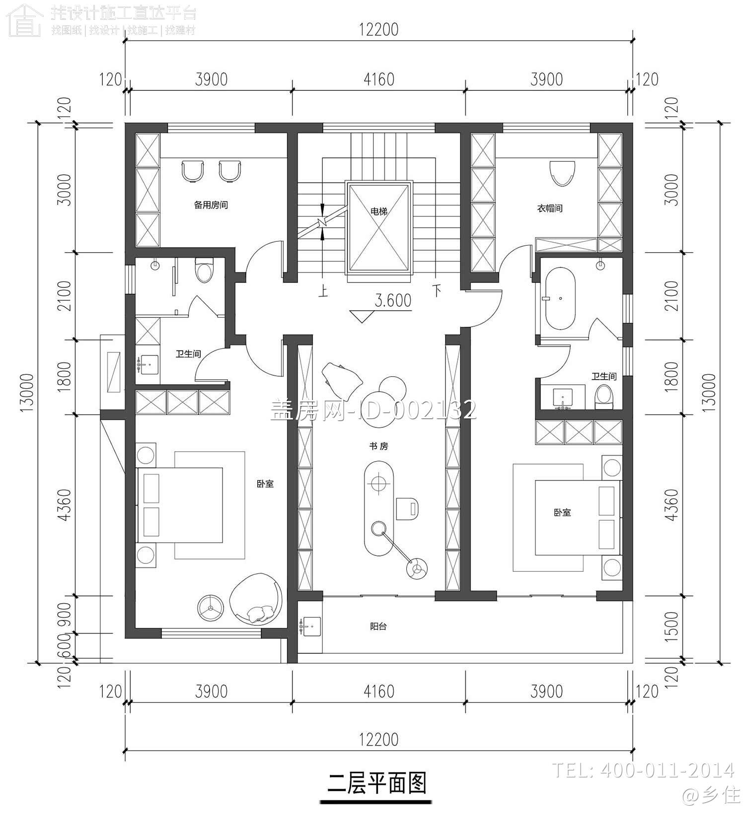
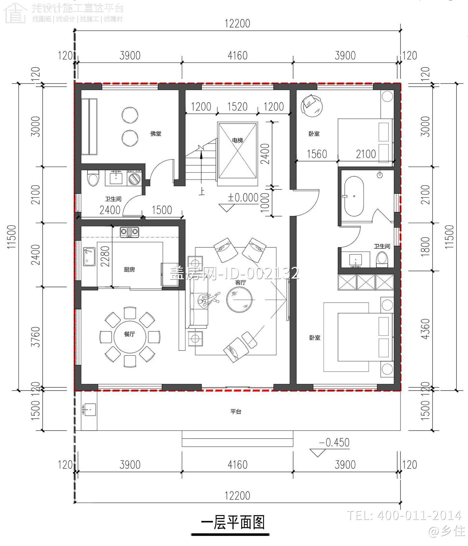
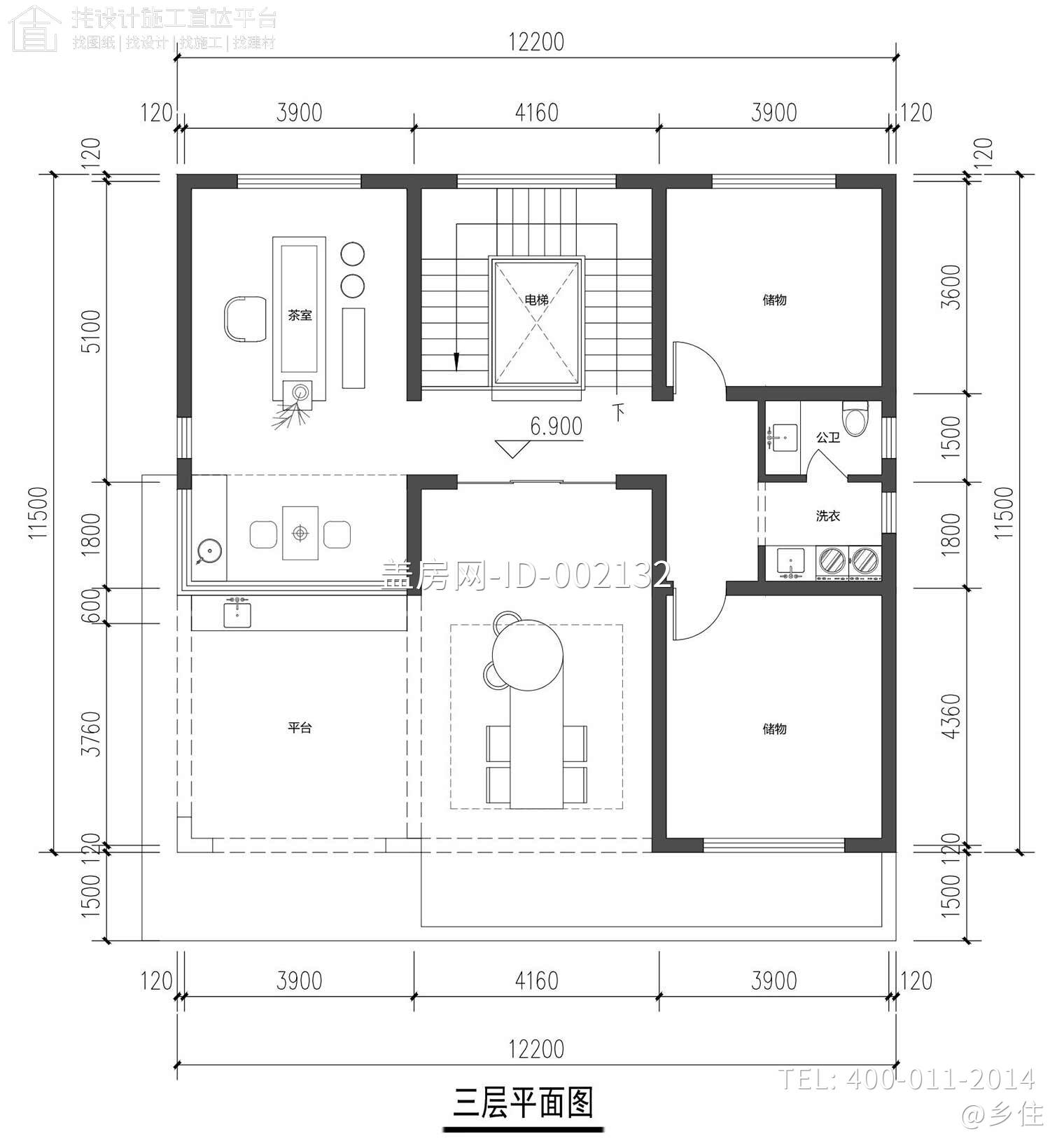
- 12.20 米
- 11.50 米
- 3 开间
- 4 间
- 3 层
- 热门精品,现代,实用
- 砖混结构
- 江苏省/苏州市
- 有露台,坡屋顶,有庭院,北楼梯,3开间,4卧室,三跑楼梯
项目简介
平面图
效果图
立面图
