北京市 [切换]
咨询热线:400-011-2014
账号登录
免费入驻
直接拨打此设计师电话 免费下载施工图

北京房山石楼镇二层新中式别墅

项目简介
北京房山石楼镇二层新中式别墅
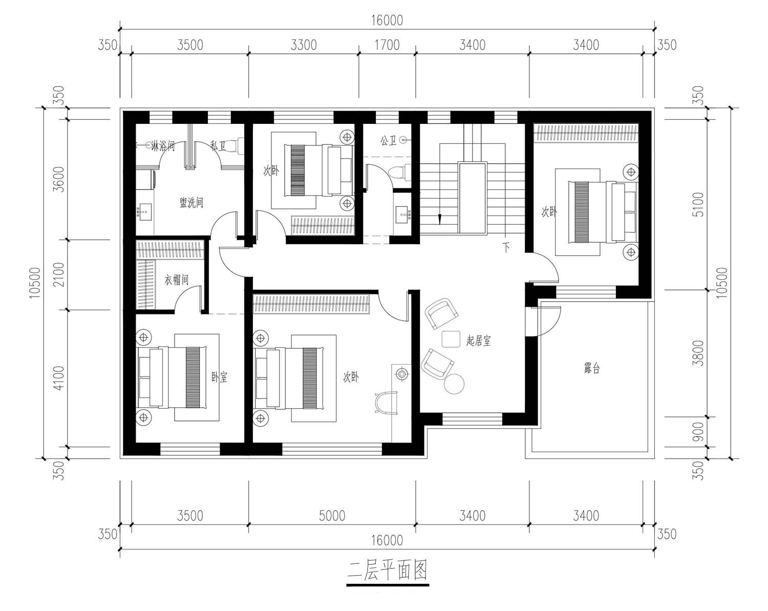
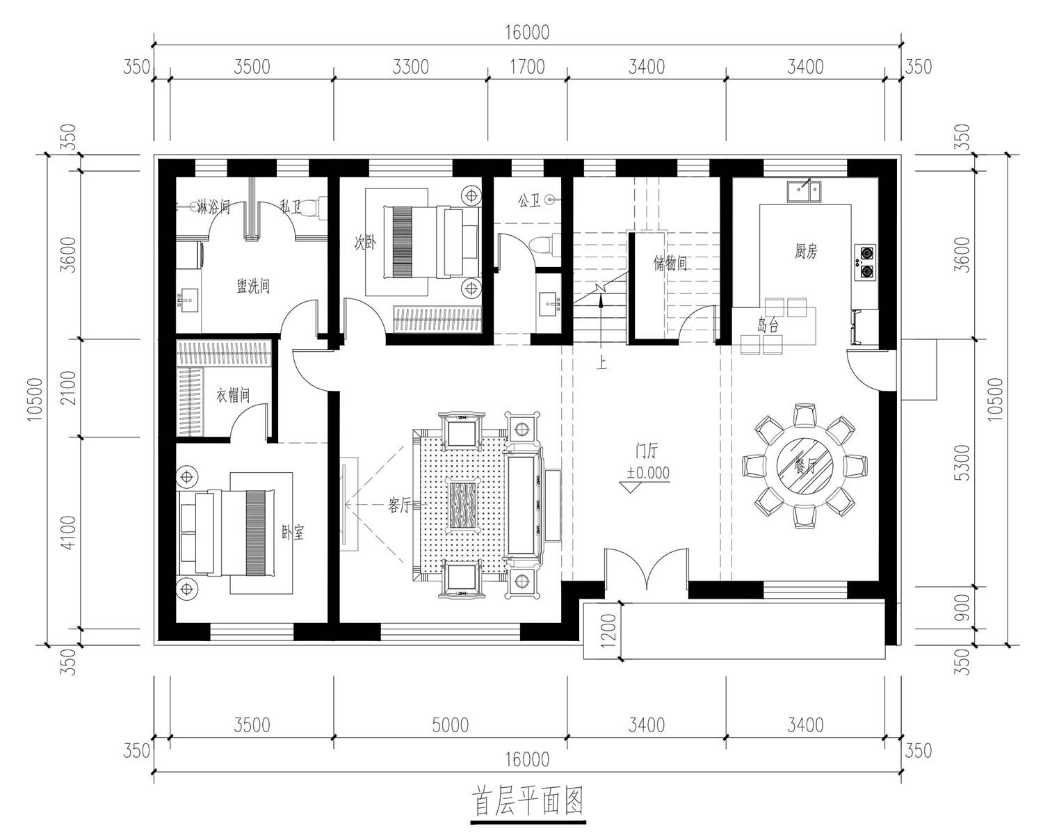
平面图
北京房山石楼镇二层新中式别墅	北京房山石楼镇二层新中式别墅
效果图
北京房山石楼镇二层新中式别墅	北京房山石楼镇二层新中式别墅	北京房山石楼镇二层新中式别墅	北京房山石楼镇二层新中式别墅	北京房山石楼镇二层新中式别墅