河南开封张家二层现代别墅
- 002136
- 60.00 万元
- 425.00 ㎡
- 305.00 ㎡
- 17.10 米
- 8.50 米
- 4 开间
- 5 间
- 2 层
- 热门精品,现代,实用
- 框架结构
- 河南省/开封市
- 地下室,有露台,坡屋顶,有庭院,西楼梯,4开间,5卧室
项目简介
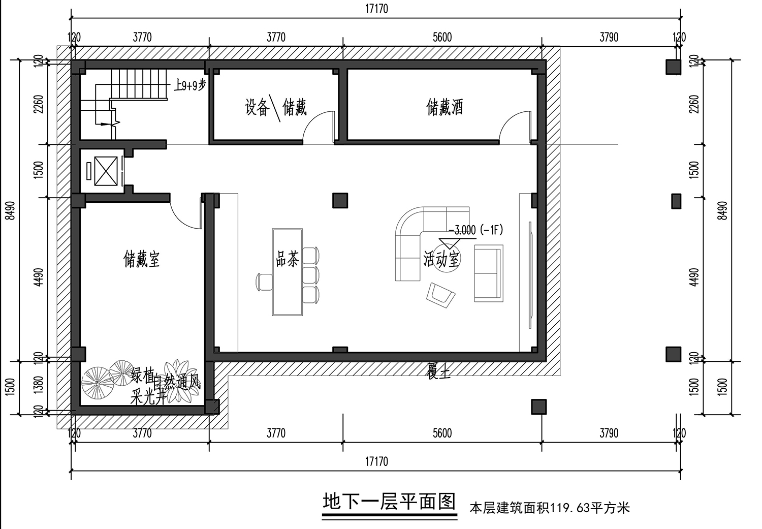
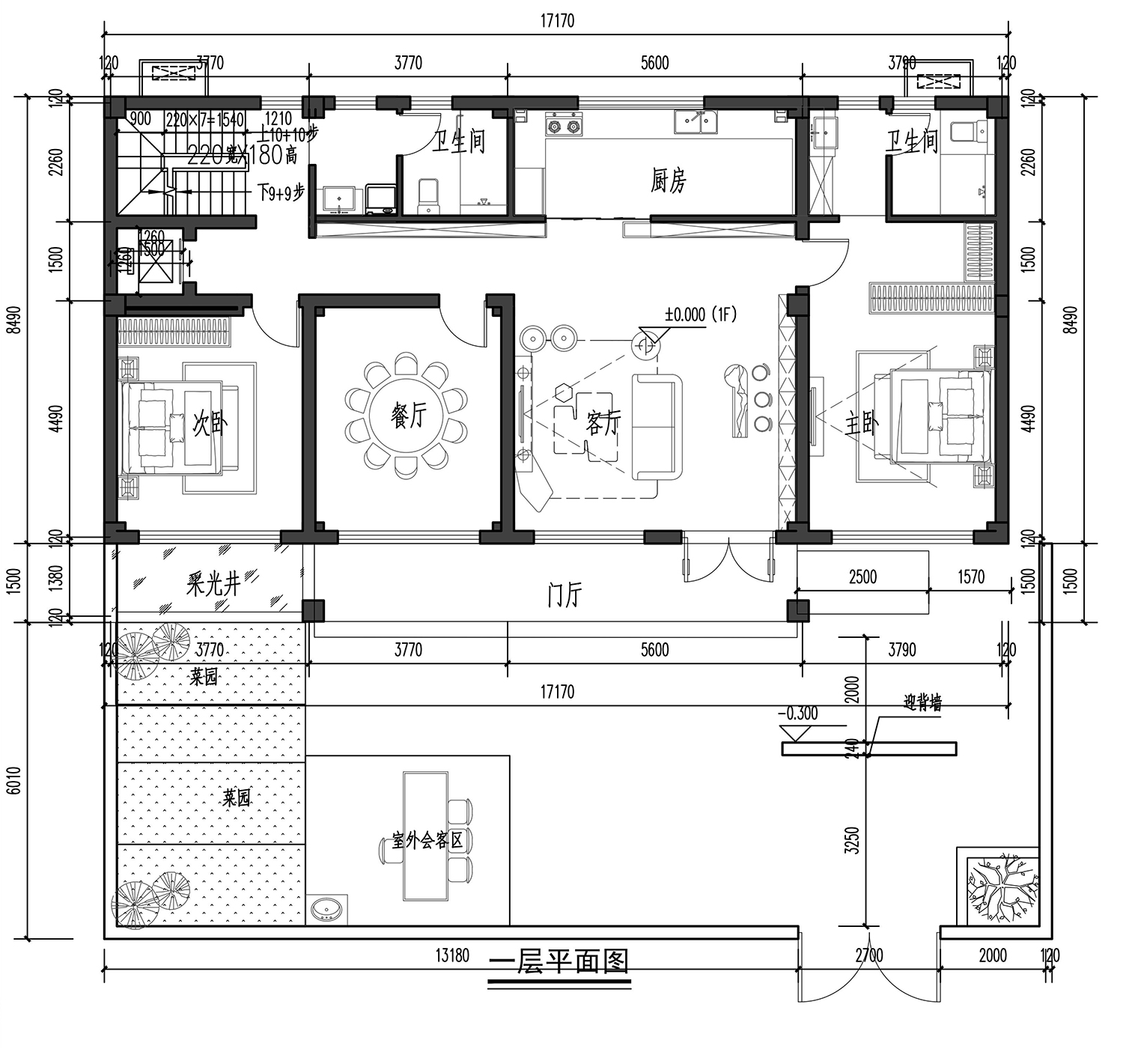
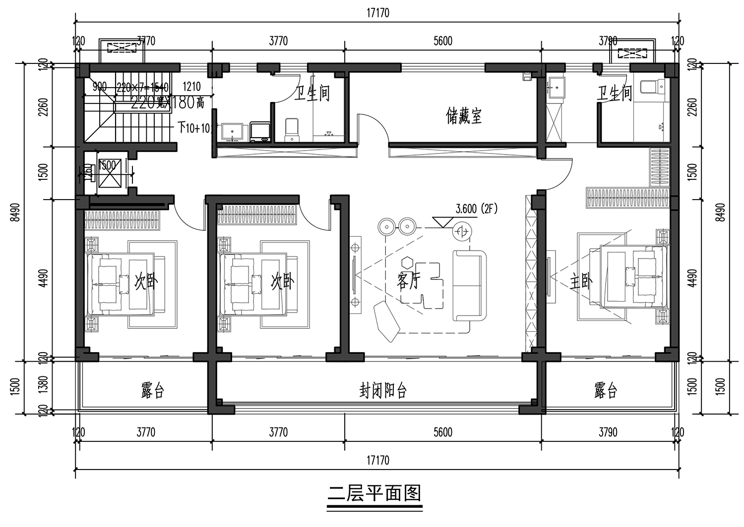
平面图
效果图
