北京房山二层现代自建别墅
- 002138
- 75.00 万元
- 540.00 ㎡
- 183.00 ㎡
- 10.70 米
- 13.20 米
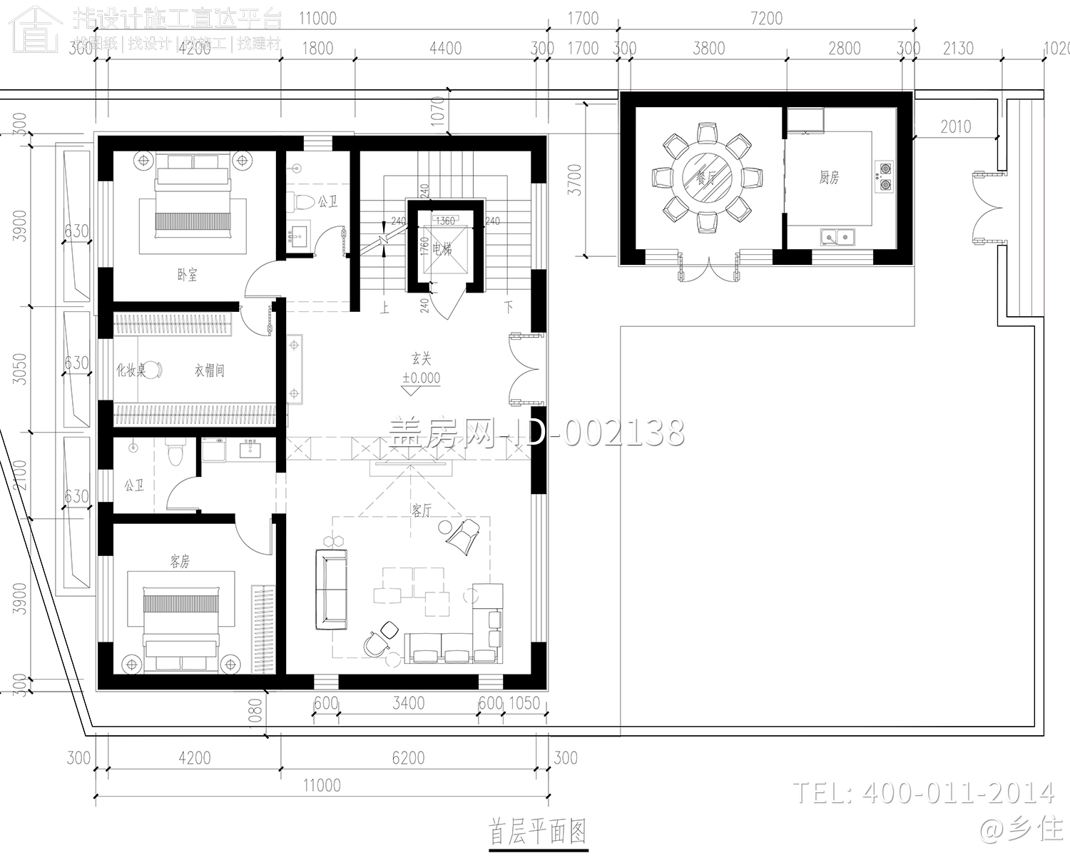
- 3 开间
- 5 间
- 2 层
- 热门精品,现代,实用,民宿
- 框架结构
- 北京/北京市/房山区
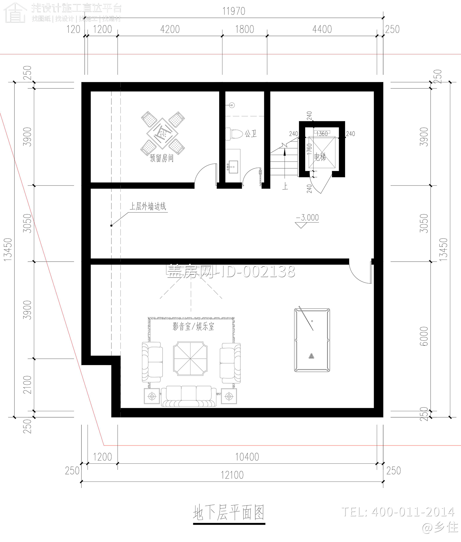
- 地下室,有露台,平屋顶,有庭院,东楼梯,3开间,5卧室,带电梯
项目简介
平面图
效果图
