北京顺义王家新中式别墅
- 000653
- 120.00 万元
- 678.00 ㎡
- 189.00 ㎡
- 14.80 米
- 15.40 米
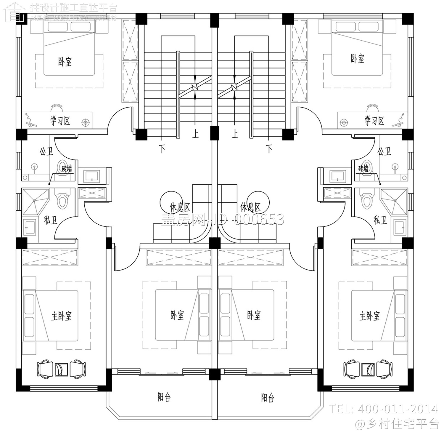
- 4 开间
- 8 间
- 2 层
- 新中式,左右对称,双拼
- 框架结构
- 北京/北京市/顺义区
- 地下室,有露台,坡屋顶,有庭院,北楼梯,4开间,8-9卧室
动态视频
项目简介
平面图
效果图
立面图
