北京昌平冉家欧式别墅
- 000740
- 69.00 万元
- 373.00 ㎡
- 186.00 ㎡
- 16.20 米
- 12.80 米
- 4 开间
- 6 间
- 2 层
- 欧式,实用,左右对称,双拼
- 北京/北京市
- 坡屋顶,贴邻居,有庭院,北楼梯,4开间,6-7卧室
项目简介
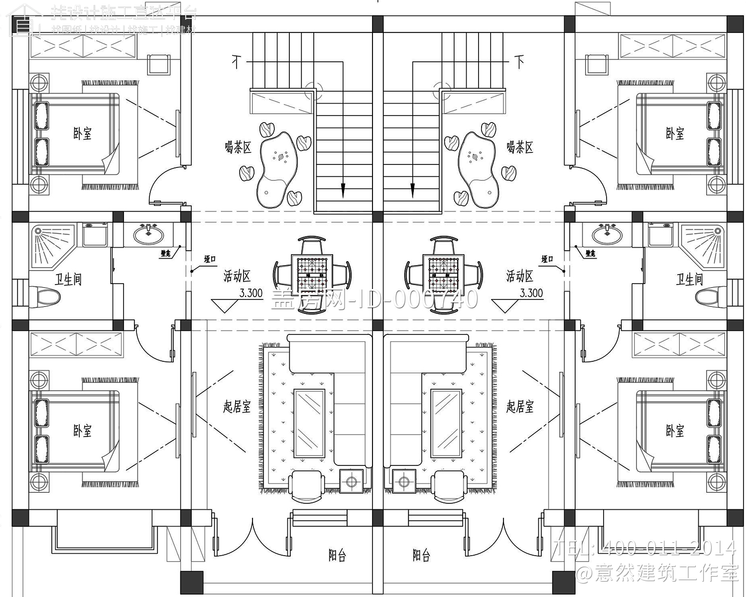
平面图
效果图
立面图
